Direccion

Uriarte 1274 - Banfield

Telefono

(011) 4248-7431 / 4248-5868

Whatsapp

1157415390

Volver

Volver al listado

CASA 3 AMB. CON AMPLIO GARAGE VTA. DIRECTA

direccion Jose Leon Suarez 1379, Remedios De Escalada

Venta

USD 80.000

Características
tipo Casas
ambiente 3 ambientes
dormitorio 2 dormitorios
baños 1 baño
cochera cochera
superficie Sup. cubierta 90m2
superficie Sup. total 210m2
Acerca de la propiedad

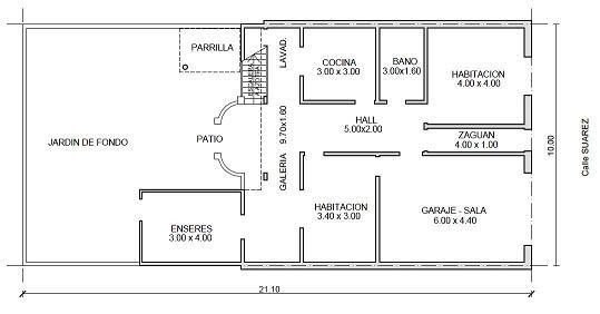
Comedor diario, cocina comedor, 2 dormitorios amplios (uno 4x 4 y otro 4.4o x 3),  baño (muy comodo), garage o Local muy amplio (4.40 x 6), galeria semicubierta con lavadero, fondo libre con cuarto de enseres y escalera para terraza.- sobre lote de 10 x 21.105  Venta directa.-


“QUE EL SITIO  BUSCADORPROP PUBLIQUE LAS PROPIEDADES EN PESOS  (por conversión automática)”, no implica ni obliga,  que el vendedor del bien publicado acepte la comercialización del bien en dicha moneda.  Inmobiliaria García Gutiérrez.-

Ubicación
Consultar por propiedad
Casa 3 Amb. Con Amplio Garage Vta. Directa
Venta
USD 80.000

Comunicate con nosotros

error

error

error

error


Propiedades relacionadas
Chatea con nosotros situacion
contacto No dudes en contactarte con nosotros contacto
Whatsapp WHATSAPP telefono LLAMAR
Comunicate con nosotros

error

error

error

error